Terraced House in the Heart of Noriglio exclusively by Dr. SALCHER Real Estate

Rovereto (TN)

ID A036

In the charming historic center of Noriglio, an ancient hillside village just outside Rovereto, we offer for sale an elegant terraced house that perfectly balances traditional architecture with contemporary living comfort.

Noriglio enjoys a strategic yet peaceful location, immersed in the tranquillity of the Trentino hills while remaining excellently connected to the main urban centers of the region: Rovereto is only a few minutes away, Trento and Bolzanoare approximately 25 and 60 minutes away respectively, and the shores of Lake Garda – particularly Torbole –are easily accessible in 30 minutes. This makes the property ideal both as a primary residence and as a charming retreat.

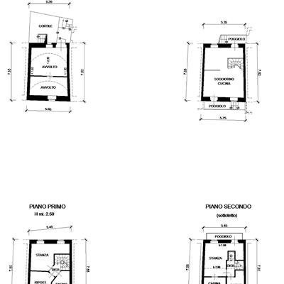
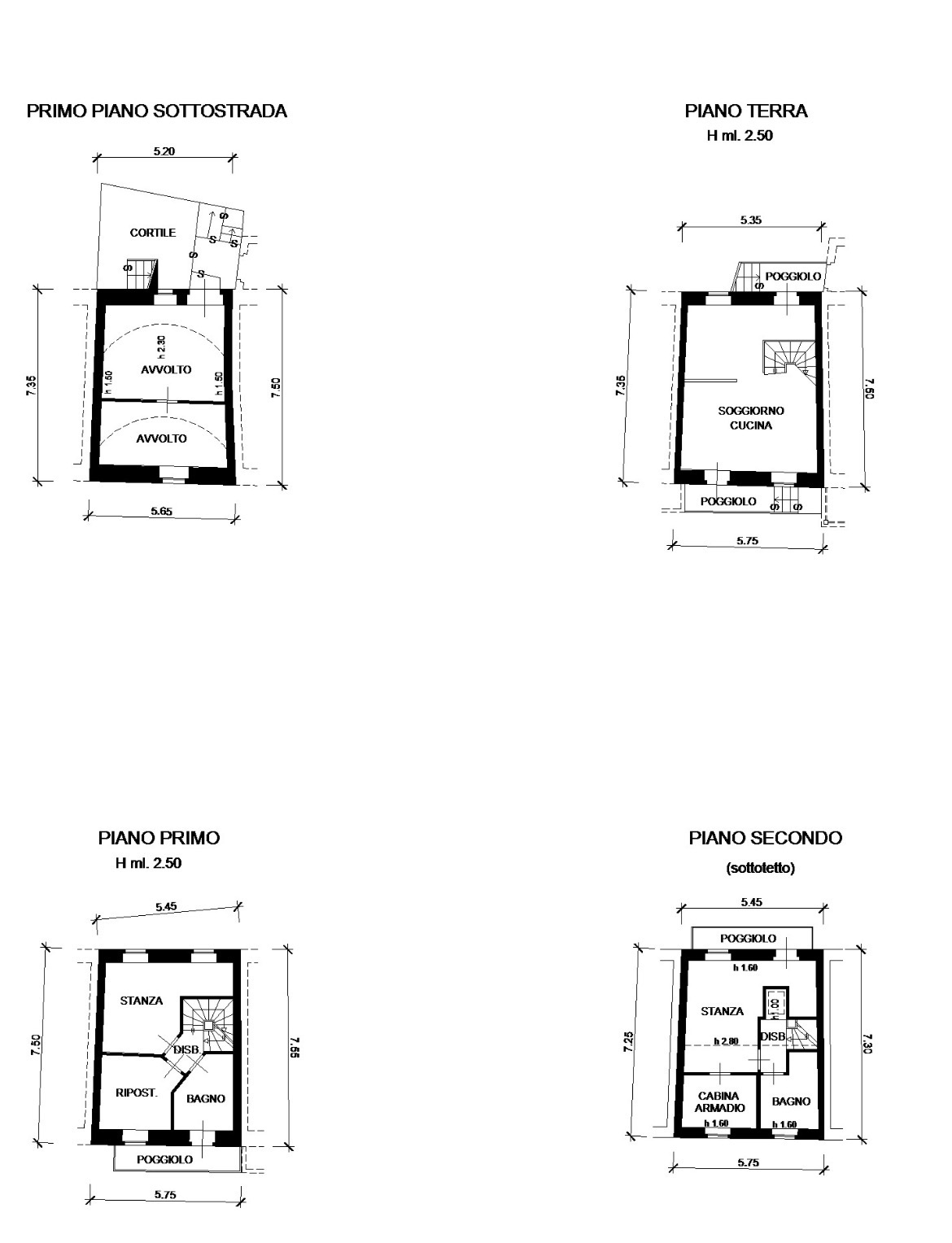
The house was completely renovated in 2008 and offers a total cadastral area of 150 sqm, arranged over several levels with bright, harmonious and well-proportioned interiors:

  • Ground floor: refined open-plan living area with kitchen and lounge, enhanced by two balconies overlooking the life of the village, small private courtyard, creating a pleasant connection between indoor and outdoor spaces.

  • First floor: hallway, two bedrooms, and a windowed bathroom with bathtub, complete with a balcony, designed as a space dedicated to relaxation and well-being.

  • Second floor: exclusive master suite featuring a walk-in wardrobe, private balcony, and windowed bathroom with shower, offering privacy and comfort.

  • Basement levelcourtyard, vaulted cellar, boiler room, and laundry area, all functional and well-organized service spaces.

The property is equipped with solar panels for domestic hot water production, combining sustainability, energy efficiency, and reduced consumption.
single garage, located just a short distance from the house, completes the property, ensuring convenience and security.

A residence of discreet elegance, ideal for those seeking an authentic and historic setting without sacrificing modern comfort and excellent transport connections.

Energy Performance Certificate currently being updated.

Property video presentation:

Map

Information

  • Type
    Terraced house
  • Square footage
    150 Sqm
  • Spaces
    4
  • Rooms
    3
  • Bathroom
    2
  • Garage
    1
  • Parking places
    1
  • Year of construction
    2008
  • Floor
  • Condominium Fee
    Euro 15 per month
  • Energy performance certificate
    currently being updated
  • Price
    390.000 €
  • Contract
    Sale

Data sheet

  • Laundry
  • Double glazing
  • Storage room
  • Pedestrian passage
  • Independent heating
  • Solar Panels
  • Independent Entrance
  • Parking space

Dr.Salcher Real Estate

Via Madonna del Monte n. 2R
38068 Rovereto (TN)
P.IVA 02654380225

Phone: +39 340 4560824
Mail: info@drsalcher.com

Request information